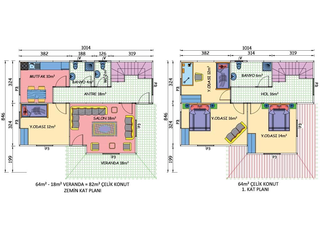
146 M2 DOUBLE STOREY STEEL HOUSING

  1. Home
  2. Product
  3. 130×210 Cabin Prefab Office or Rest Area Unit (PRK3007)

146 M2 DOUBLE STOREY STEEL HOUSING

Contact

Contact us

Contact Us for Your Living Space!

We build your dreams, we shape your future with prefabricated solutions!