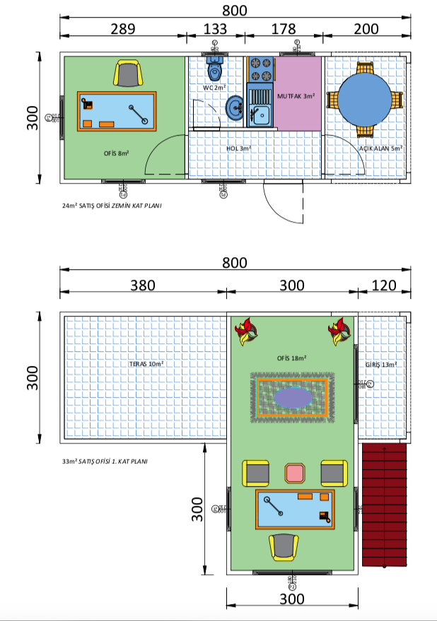
57 M2 DOUBLE STOREY MODULE SALES OFFICE

  1. Home
  2. Product
  3. 130×210 Cabin Prefab Office or Rest Area Unit (PRK3007)

57 M2 DOUBLE STOREY MODULE SALES OFFICE

Category :

Contact

Contact us

Contact Us for Your Living Space!

We build your dreams, we shape your future with prefabricated solutions!